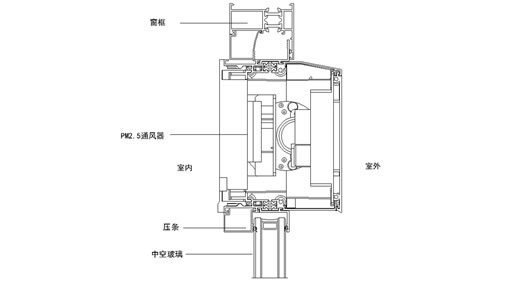
工作原理:
采用实时环境监测多重(高效滤网,活性炭等)过滤净化,可实现定时操作,远距离红外控制。
产品特点:
1.单向过滤净化新风。
2.采用高效滤网,活性炭等多重过滤净化有效消减空气中的PM2.5,异味,细菌等,使空气真正洁净,呼吸更加健康。
3.空调式风机保障设备持久运行。
4.大屏显示,远成红外遥控。
5.可选用家电电源。
6.产品经济性较强,适用于工程项目应用。
产品参数:

整机PM2.5一次过滤检测报告:

联系人: 胡先生
电话:18983677860
邮箱:cqzhuchao@126.com
地址:重庆市铜梁区铜合大道588-6号
重庆筑巢建筑材料有限公司 备案号:渝ICP备17007993号 渝公网安备 50011902000455号 技术支持:重庆畅搜科技